Projecten Nieuwbouw Nieuwbouwprojecten Nieuwbouwprojecten detailpagina IJsselmeerstraat 196 t/m 242

IJsselmeerstraat 196 t/m 242

Leestijd: 2 minuten

Dit project bestaat uit 24 huurwoningen aan de IJsselmeerstraatstraat in Nieuw Den Helder, op loopafstand van diverse voorzieningen.

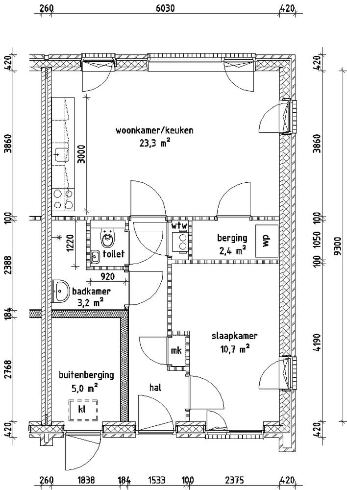
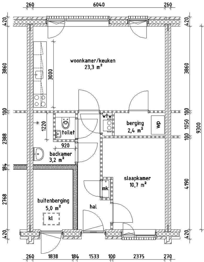
De woningen bestaan uit een woonkamer met keukenblok, een slaapkamer, badkamer, toilet , inpandige berging en een buitenberging.

Doelgroep

De woningen zijn bedoeld voor jongeren van 23 tot en met 27 jaar. Huurders krijgen een jongerencontract van vijf jaar, waarbij hun inschrijving bij Woonmatch behouden blijft – zo sparen zij door voor meer punten. Na vijf jaar komt de woning beschikbaar voor een nieuwe jongere.

Intakegesprek

De woningen zijn gebouwd in een hofje. Wonen in een hofje betekent meer dan alleen een dak boven je hoofd. Het is een woonvorm die uitnodigt tot ontmoeting, betrokkenheid en samenleven. De opzet van een hofje – met woningen rondom een gezamenlijke buitenruimte – biedt een unieke kans om een hechte gemeenschap te vormen waarin buren elkaar kennen, helpen en samen zorgen voor een prettige leefomgeving.

Het doel is om bewoners actief te betrekken bij hun woonomgeving en elkaar. Dit begint al bij het intakegesprek, waarin motivatie, betrokkenheid en inzet voor de buurt worden besproken. Zo wordt niet alleen gekeken naar woonwensen, maar ook naar de bereidheid om bij te dragen aan een leefbare wijk.

Verhuurinformatie

Van de 24 woningen aan de IJsselmeerstraat worden er 20 via Woonmatchkopnh.nl aangeboden. De overige 4 woningen zijn gereserveerd voor een andere doelgroep en worden via een andere route toegewezen.

Wij adverteren de woningen op maandag 10 november op Woonmatchkopnh.nl. Bij een geschikte kandidaat volgt eerst een intakegesprek met Wijkbeheer. Is het gesprek positief? Dan wordt op maandag 8 december de huurovereenkomst op locatie getekend.

De huurprijzen zijn vastgesteld op € 682,96. Naast de huur zijn er ook algemene kosten voor Abonnee Onderhoud, glasverzekering, huismeester en tuinonderhoud. 

Open huis

Op zaterdag 1 november openen wij de deuren van onze woningen aan de IJsselmeerstraat tijdens een open huis.

Tijd: 11:00 – 13:00 uur

Kom langs, bekijk de woningen en proef de sfeer. Onze medewerkers staan klaar om al je vragen te beantwoorden en je te helpen bij het vinden van jouw ideale woning.

 

 

Kenmerken

Aantal woningen
24 huurwoningen

Planning

Datum van oplevering
4e kwartaal 2025
Status
in uitvoering
Terug naar overzicht